Agent

Stanovi, Kuće i Vikendice Moj Dom Danijel Zorić
KLIKNI OVDE- Šifra 1031169
- Mesto NOVI SAD
- Lokacija TELEP
- Br. soba 4
- Terasa DA
- Ukupno spratova 2
- Sprat 2
- Uknjižen DA
- Lift NE
- Grejanje GS
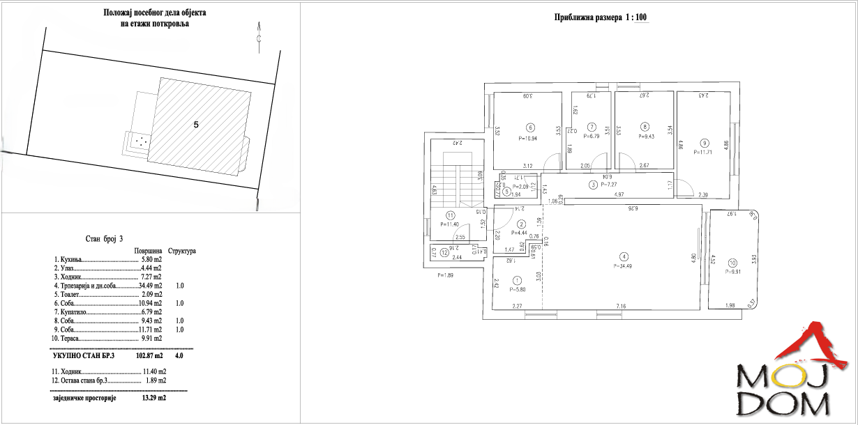
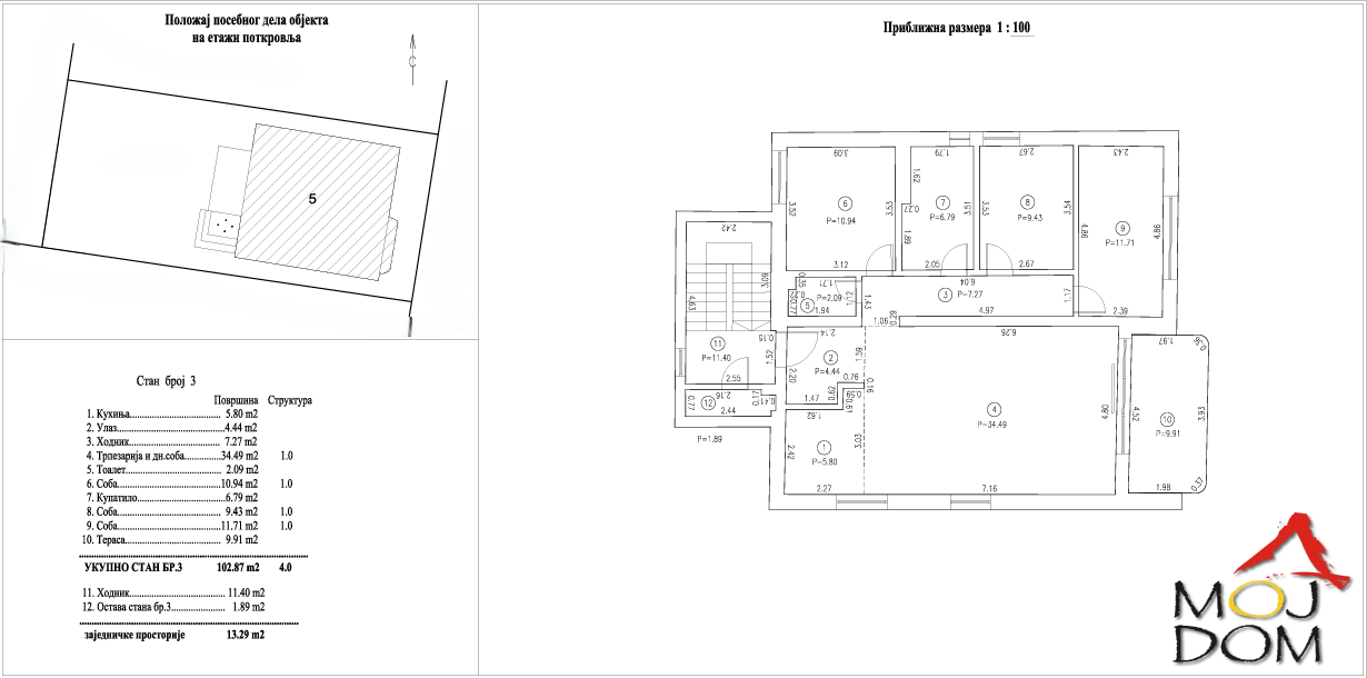
- Kvadratura 103 m2
- Godina gradnje 2025
- Cena 297.000 €
- Ažuriran 01.10.2025
Agent

Stanovi, Kuće i Vikendice Moj Dom Danijel Zorić
KLIKNI OVDE
Opis nekretnine
Na Telepu, u jednom od najpoželjnijih delova Novog Sada, prodaje se potpuno nov, moderan četvorosoban stan na drugom spratu koji odiše komforom, kvalitetom i luksuzom. Poseban adut ove nekretnine je krovna terasa od 110 m² sa prelepim panoramskim pogledom na Frušku goru, koja pruža maksimalnu privatnost i mogućnost postavljanja đakuzi bazena – idealno mesto za opuštanje i uživanje na otvorenom.
Prostran dnevni boravak zamišljen je kao srce doma – povezuje veliku kuhinju, trpezarijski deo i prijatan prostor za odmor, dok ga veliki portali sa troslojnim staklima obasjavaju prirodnim svetlom tokom celog dana. Stan poseduje dva funkcionalno raspoređena kupatila, prostranu terasu idealnu za porodična druženja, kao i dodatnu ostavu koja donosi praktičnost svakodnevnom životu. Sve sobe su svetle, komforne i odvojene izdvojenim hodnikom, čime je obezbeđena potpuna privatnost svake prostorije.
U gradnji su korišćeni samo vrhunski materijali – hrastov parket plemenite topline i keramika modernog dizajna visokog kvaliteta, što stanu daje poseban pečat elegancije i dugotrajnosti. Uz stan dolaze i dva pripadajuća parking mesta, što ovu nekretninu dodatno čini praktičnom i vrednom investicijom.
Ovo je dom koji pruža savršen balans udobnosti, stila i funkcionalnosti – četvorosoban stan sa krovnom terasom na Telepu idealan za porodičan život u blizini škola, marketa i svih sadržaja potrebnih za svakodnevicu.
Za više informacija pozovite:
063304062, 063446559
Šifra oglasa: 1031169
Moj Dom nekretnine, Novi Sad, Reg. br. 174
Novi Sad – Grbavica
For sale: an excellent and functional two-and-a-half-room apartment in one of the most sought-after locations in the city. The apartment is spread over two levels, with the lower level consisting of a living room with kitchen and dining area, a terrace, and a toilet, while the upper level includes two bedrooms and a bathroom. The apartment is being sold fully furnished.
The building’s courtyard offers a large parking area where there is almost always a free spot to park your vehicle.
For all additional information, please call:
Contact – 063446559
Code – 1031173
Moj Dom Real Estate, Novi Sad, Reg. No. 174
For Sale – Modern Four-Bedroom Apartment with Rooftop Terrace in Telep, Novi Sad
In one of the most desirable areas of Novi Sad – Telep – a brand-new, modern four-bedroom apartment is for sale, located on the second floor, offering ultimate comfort, quality, and luxury. A special highlight of this property is the private rooftop terrace of 110 m² with a breathtaking panoramic view of Fruška Gora, perfect for relaxation and outdoor enjoyment, with the option of installing a jacuzzi.
The spacious living room is designed as the heart of the home – connecting a large kitchen, dining area, and a cozy lounge space, while floor-to-ceiling windows with triple-glass panels flood the interior with natural light throughout the day. The apartment includes two functionally designed bathrooms, a large terrace ideal for family gatherings, and an additional storage room that adds practicality to everyday living. All rooms are bright, comfortable, and separated by a dedicated hallway, ensuring complete privacy for every space.
High-quality materials have been used in construction – oak parquet with natural warmth and premium modern ceramic tiles give the apartment a unique touch of elegance and durability. The property comes with two dedicated parking spaces, making it both a practical choice and a valuable investment.
This is a home that perfectly balances comfort, style, and functionality – a four-bedroom apartment with a rooftop terrace in Telep, ideal for family life, close to schools, supermarkets, and all daily amenities.
For more information, call:
063304062, 063446559
Listing ID: 1031169
Moj Dom Real Estate, Novi Sad, Reg. no. 174
Продаётся – Современная четырёхкомнатная квартира с террасой на крыше в Телепе, Нови-Сад
В одном из самых востребованных районов Нови-Сада – Телепе – продаётся абсолютно новая, современная четырёхкомнатная квартира на втором этаже, которая сочетает в себе комфорт, качество и роскошь. Особое преимущество объекта – крытая терраса площадью 110 м² с великолепным панорамным видом на Фрушку Гору, где можно установить джакузи. Это идеальное место для отдыха и наслаждения на свежем воздухе в полной приватности.
Просторная гостиная задумана как сердце дома – объединяет большую кухню, столовую зону и уютное место для отдыха, а панорамные окна с тройным остеклением наполняют пространство естественным светом в течение всего дня. В квартире есть два функционально спроектированных санузла, большая терраса для семейных встреч, а также дополнительная кладовая, которая делает повседневную жизнь ещё удобнее. Все комнаты светлые, просторные и разделены отдельным коридором, что обеспечивает полную приватность.
При строительстве использовались только высококачественные материалы – дубовый паркет благородного оттенка и современная керамика премиум-класса придают квартире особую элегантность и долговечность. В стоимость входят два парковочных места, что делает недвижимость ещё более практичной и выгодной инвестицией.
Это жильё, которое предлагает идеальный баланс уюта, стиля и функциональности – четырёхкомнатная квартира с террасой на крыше в Телепе, идеально подходящая для семейной жизни рядом со школами, магазинами и всей необходимой инфраструктурой.
Для дополнительной информации звоните:
063304062, 063446559
Код объявления: 1031169
Moj Dom недвижимость, Нови-Сад, рег. № 174
Agencija Moj Dom nekretnine (Novi Sad, reg. broj 174) U oglasnoj ceni je uračunata agencijska provizija od 3%
SKICA STANA
