Agent

Stanovi, Kuće i Vikendice Moj Dom Danijel Zorić
KLIKNI OVDE- Šifra 1031168
- Mesto NOVI SAD
- Lokacija TELEP
- Br. soba 4
- Terasa DA
- Ukupno spratova 2
- Sprat 1
- Uknjižen DA
- Lift NE
- Grejanje GS
- Kvadratura 101 m2
- Godina gradnje 2025
- Cena 275.650 €
- Ažuriran 01.10.2025
Agent

Stanovi, Kuće i Vikendice Moj Dom Danijel Zorić
KLIKNI OVDE
Opis nekretnine
Na Telepu, u jednom od najpoželjnijih delova Novog Sada, prodaje se potpuno nov, moderan četvorosoban stan na prvom spratu koji odiše komforom i kvalitetom. Prostran dnevni boravak zamišljen je kao srce doma – povezuje veliku kuhinju, trpezarijski deo i prijatan prostor za odmor, dok ga veliki portali sa troslojnim staklima obasjavaju prirodnim svetlom tokom celog dana.
Stan ima dva funkcionalno raspoređena kupatila, prostranu terasu idealnu za porodična druženja, kao i dodatnu ostavu koja pruža praktičnost svakodnevnom životu. Sve sobe su osmišljene tako da budu svetle i komforne, sa velikim portalnim prozorima, a raspored sa izdvojenim hodnikom omogućava potpunu privatnost svake prostorije.
U gradnji su korišćeni vrhunski materijali – hrastov parket plemenite topline i keramika modernog dizajna visokog kvaliteta, što stanu daje poseban pečat elegancije i dugotrajnosti. Uz stan dolaze i dva pripadajuća parking mesta, što ovu nekretninu čini još vrednijom.
Ovo je dom koji pruža savršen balans udobnosti, stila i praktičnosti – idealan za porodičan život u blizini škola, marketa i svih sadržaja neophodnih za svakodnevicu.
Za više informacija pozovite:
063/304-062, 063/446-559
Šifra oglasa: 1031168
Moj Dom nekretnine, Novi Sad, Reg. br. 174
For sale – A brand-new, modern four-room apartment in Telep, one of the most desirable parts of Novi Sad. Located on the first floor, this spacious home radiates comfort and quality. The open-plan living room is designed as the heart of the home, seamlessly connecting a large kitchen, dining area, and cozy relaxation zone, while floor-to-ceiling triple-glazed windows flood the space with natural light throughout the day.
The apartment features two well-organized bathrooms, a spacious terrace ideal for family gatherings, and an additional storage room that adds practicality to everyday life. All rooms are bright and comfortable, with large portal-style windows, while the layout with a separate hallway ensures complete privacy for each room.
High-quality materials were used in construction – oak parquet flooring with natural warmth and premium modern ceramic tiles, giving the apartment a touch of elegance and long-lasting value. The property also includes two private parking spaces, making it even more attractive.
This is a home that offers the perfect balance of comfort, style, and functionality – ideal for family living, close to schools, markets, and all essential amenities.
For more information call:
063/304-062, 063/446-559
Listing code: 1031168
Moj Dom Real Estate, Novi Sad, Reg. no. 174
Продаётся совершенно новая, современная четырёхкомнатная квартира в районе Телеп – одном из самых престижных и востребованных районов Нового Сада. Квартира расположена на первом этаже и сочетает в себе комфорт и высокое качество. Просторная гостиная, задуманная как сердце дома, объединяет большую кухню, столовую зону и уютное место для отдыха, а панорамные окна с тройным остеклением наполняют пространство естественным светом в течение всего дня.
В квартире два функционально расположенных санузла, просторная терраса, идеально подходящая для семейных встреч, а также дополнительная кладовая, обеспечивающая удобство в повседневной жизни. Все комнаты светлые и комфортные, с большими порталными окнами, а планировка с отдельным коридором гарантирует полную приватность каждой зоны.
В строительстве использованы материалы высшего качества – дубовый паркет с благородным теплом и керамика современного дизайна премиум-класса, что придаёт квартире особую элегантность и долговечность. В стоимость входят два парковочных места, что делает объект ещё более ценным.
Этот дом обеспечивает идеальный баланс уюта, стиля и практичности – идеально подходит для семейной жизни рядом со школами, магазинами и всей необходимой инфраструктурой.
Для получения дополнительной информации звоните:
063/304-062, 063/446-559
Код объявления: 1031168
Агентство недвижимости Moj Dom, Нови-Сад, Рег. № 174
Agencija Moj Dom nekretnine (Novi Sad, reg. broj 174) U oglasnoj ceni je uračunata agencijska provizija od 3%
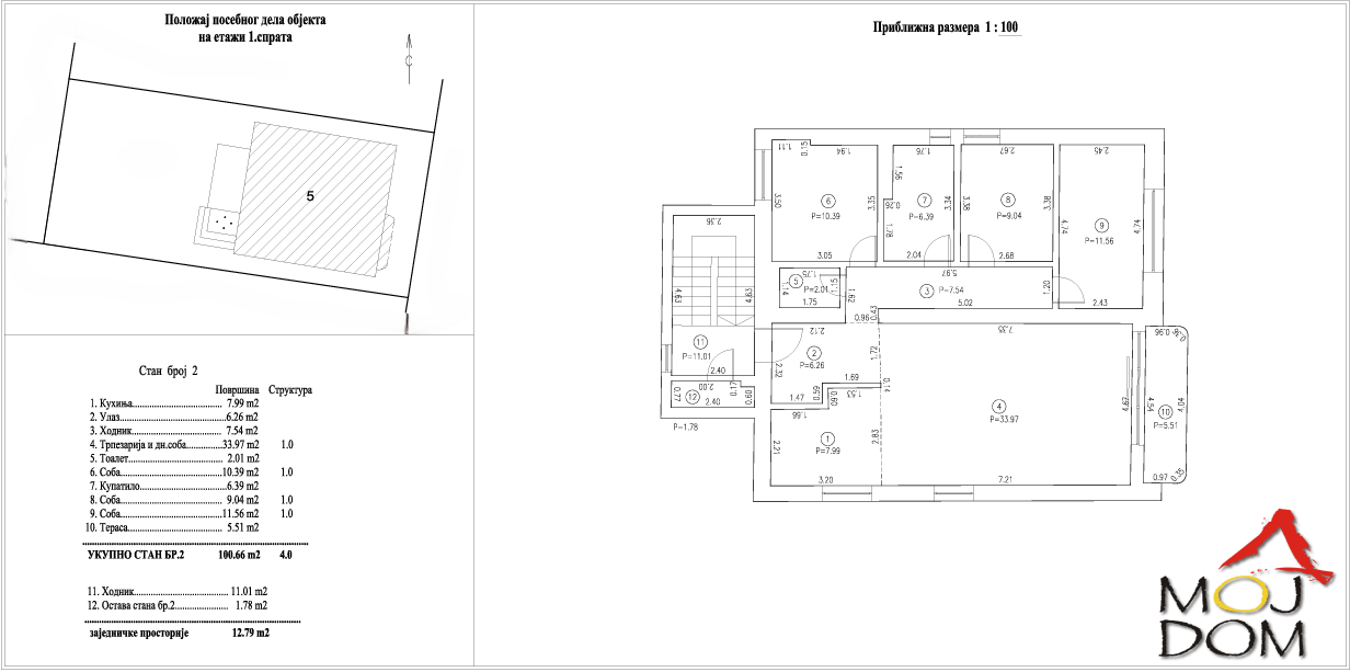
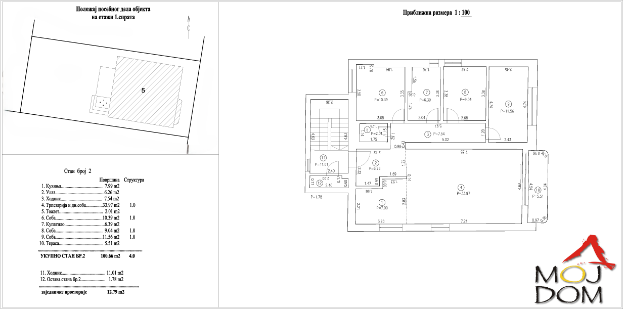
SKICA STANA
